Auslegung und Berechnung
Wir bieten professionelle Planung und Berechnung für interne Heizungs-, Wasserversorgungs- und Abwassersysteme für Privathäuser, Büros, Wohnungen und Industriegebäude.
-
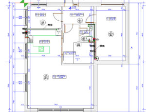
Berechnung von Flächenheizungssystemen
Fußbodenheizung, Wandheizung für Häuser, Wohnungen und Industrieanlagen. Vollständige thermische Analyse und Systemoptimierung.
Beispiel ansehen
Berechnungsumfang:
-
- Berechnung der Wärmeleistung
- Hydraulische Berechnungen
- Dimensionierung / Überprüfung der Richtigkeit geometrischer Parameter (Schichtdicken)
- Dimensionierung / Kontrolle der Rohrverlegeabstände
- Hydraulischer Abgleich
- Dimensionierung und hydraulische Berechnungen von Verteilerzubehör
- Visuelle Darstellung, einschließlich Verlegungsdarstellung samt Anschlussleitungen
- Normen und Regeln, nach denen die Berechnungen durchgeführt werden
-
Berechnung der Wärmeverluste von Gebäuden
Wir ermitteln die Wärmeverluste von Häusern, Wohnungen und Industriegebäuden. Eine präzise thermische Analyse dient als Grundlage für eine effiziente und optimal geplante Heizungsanlage.
Beispiel ansehen
Berechnungsumfang:
- Berechnungen basierend auf grafischen Elementen
- Vollständiges 3D-Gebäudemodell mit vielfätigen Anzeigemöglichkeiten und Ansichtsoptionen
- Möglichkeit, eine Berechnungs-Norm auszuwählen, an die die Ausdrucke angepasst werden
- Bauteildimensionierung (Dämmschicht) gemäß der ausgewählten Norm
- Ermittlung von Wärmebrücken im Gebäude
- Zuordnung der definierten Bauteilen zu Elementen im Gebäude, einschließlich der Möglichkeit, verschiedene Standardtypen zu deklarieren sowie Unterscheidungskriterien für die Zuordnung gleichen Typs, z.B. zu Außenwänden, verschiedener Stärken
- Grafische Darstellung Luftstroms innerhalb einer Gebäudeeinheit, mit dem die Luftstrombilanz der Lüftung schnell überprüft werden kann
- Möglichkeit zur Kontrolle des Kondensatausfalls
-
Berechnung von internen Wasserversorgungs- und Abwassersystemen
Vollständige hydraulische Berechnungen für Wasserversorgungs- und Entwässerungssysteme. Professionelle Planung für Wohn- und Gewerbeobjekte.
Beispiel ansehen
Berechnungsumfang:
Wasserversorgungssysteme (Warm- und Kaltwasser, Warmwasserzirkulation) zu entwerfen.
Es beinhaltet die grafische Bearbeitung im Projekt, Dimensionierung von Rohren und Formstücken, Präsentation von 2D- und 3D-Zeichnungen, hydraulische Berechnungen, Stücklisten.
Sanitärobjekten können Entnahmestellen zugeordnet werden, so dass sich ein komplettes Installationsmodell ergibt.






